Hello, I am
I’m a designer and creative professional with a background in architecture, interior design, and art. I’ve led design teams, founded my own studio, and worked on projects across India, Canada, USA, and Barbados, always blending cultural influences to craft spaces that are beautiful, warm, and meaningful.From concept to completion, I focus on thoughtful, narrative-driven design that transforms homes and interiors into experiences that inspire. I am passionate about not just creating memorable spaces but also coming up with creative solutions for challenging design problems.Work with Me
Have an upcoming project? Let’s connect and collaborate on something that’s not only visually stunning but tells a story of its own!
Get in touch with me using my contact form to discuss your project, rates, scheduling and more.

Balinese Spa - Bangalore, IndiaCompleted in 2023A seamless blend of natural elements and earthy colors create harmony, balance, and a connection to nature in this stunning Balinese style spa. Key features include the use of organic materials like wood, bamboo, and stone; a warm, simple color palette of whites, browns, and greens; lush greenery through potted plants; and minimalist aesthetics with clean lines and open, flowing spaces.
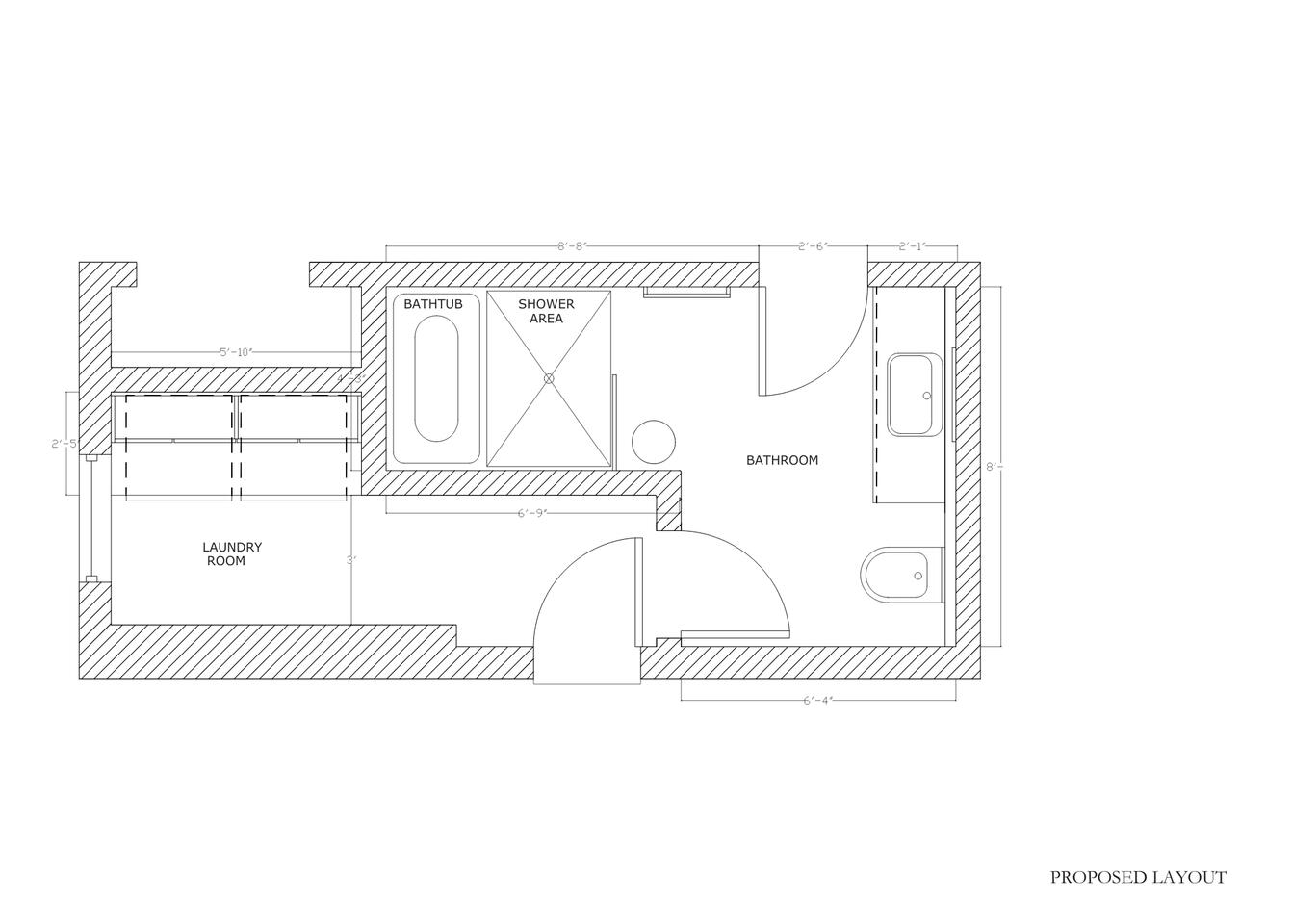
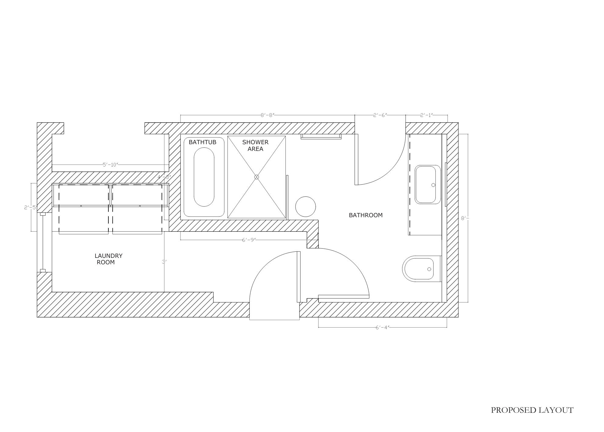
Bathroom Renovation - Barbados, CaribbeanCompleted in 2025Scandinavian minimalism.
With an emphasis on simplicity and functionality, this project focuses on making the most of the space available. The colour scheme evokes a sense of calm and peace. Neutral shades and pastel tones add brightness to the space while the black accents create depth. Natural materials like wood and stone bring warmth and character.
Roshan's Home - Bangalore, IndiaCompleted in 2024The goal was to create a serene, functional, and aesthetically cohesive home that reflects the clients' creative lifestyle while embracing the Japandi design philosophy. This meant blending Japanese minimalism and Scandinavian warmth, using natural textures, neutral tones, and organic materials to craft a tranquil yet stylish living environment.
1221 Homer Street
Vancouver, BC
V6B 1C5236-838-1910
pratikshakadur@gmail.com
FOR ALL REQUESTS PLEASE FILL OUT THE FOLLOWING:
A collection of traditional & digital artworks